Bothar Bui, Carraroe, Galway

  • Unconditional Online Auction Sale
  • AMV : Offers starting at €30,000

DNG Martin O'Connor are offering for sale by DNG Online Auction a fine site with full unconditional planning for the reconstruction of house and a garage on c. 0.15 Ha (0.37 Acres) in the scenic location of Bothar Bui, Carraroe.

Description

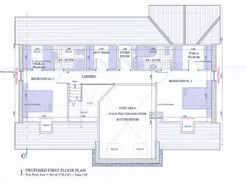
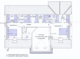
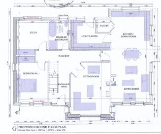
On the land, there is the ruins of a property and planning permission was granted on this land in 2019 (Planning Ref 19923) for the demolition of the existing fire damaged dwelling house and for the construction of a replacement dwelling house of 197.3 sq.m. and a domestic garage of 40 sq.m. in addition to a new treatment system. This planning permission is valid until September 2024.

This is an excellent opportunity for those looking for a ready to go site without clauses in a popular residential area by the sea.

The property is ideally located 1.5 km from the thriving village of Carraroe and its host of amenities including shops, pubs, cafes, Chemist, Library, Credit Union, Laundry, Church, Industrial Estate, Medical Centre, 24 hr Ambulance Service, Golf Course and post office.

The primary and secondary schools in Carraroe are some of the largest outside of Galway city. NUIG (National University of Ireland - Galway) also has a branch of it's Irish department here, situated in the heart of the village (Aras Mhairtin Ui Chadhain). Carraroe is also within commuting distance of vibrant city of Galway.

The fishing port of Rossaveal is just five miles away, the second largest fishing port on the western seaboard. Rossaveal also houses the terminal for ferries to the Aran Islands.

Located in an area of outstanding natural beauty along one of the most vibrant coastlines of the Wild Atlantic Way, the property is located 2.2 km from Coral Strand Beach (Tra an Doilin), well known for its clear waters and unspoilt beaches.

For further details & maps, contact DNG Martin O'Connor on 091 866708.

Directions:
From Galway City, take the R336 Connemara Coast Road to Costello/Casla and continue onto the R343 to Carraroe village. Continue straight through Carraroe village and after passing 'Ostan an Doilin' on your left, continue along the road, following the road to the left for 0.45 km, then take the next left turn just before the 80 km/h signs. Continue along this road until you meet the junction, the land will be located right in front of you signposted by the DNG Martin O'Connor For Sale sign.

Features:
• Plot of land extending to c. 0.15 Ha (0.37 Acres)
• For sale via DNG Online Auction 'as is'
• Full clean planning for the construction of a replacement dwelling house of 197.3 sq.m. and a domestic garage of 40 sq.m. in addition to a new treatment system
• Planning valid until September 2024.
• Ideal for those with no local links
• Ready to go
• 1.5 km to Carraroe village
• 2.2 km to Coral Strand Beach (Tra an Doilin)

Loading the bidding panel...

Office Contact

Martin at DNG Martin O'Connor Estate Agents & Valuers
091 866708

Vendors Solicitor

Susan Egan
091565093

Agreement Documents

Additional Documents

Make an Enquiry

Submit an enquiry and someone will be in contact shortly.

 
*  
*  
*
*
*

Share